For More Information, Please Call Tim Sunny & Co at (206) 960 - 4000
4 Single-Family Homes
- Roof Deck with Low-Maintenance Decking
- Ring Pro Video Doorbell
- Slab Quartz Counters in the Kitchen and Bathrooms
- Wide Plank Flooring
- Stainless Steel Kitchen Appliances
- Parking for Every Home
- Ultra-Large Capacity, WiFi Enable Washer and Dryer
- 4-Star Built Green
Take a 3D Virtual Tour of 10447 Alderbrook Pl NW
*Built by Greencity Development
Check out Jasmine and Zinnia, too! They're in the same community.

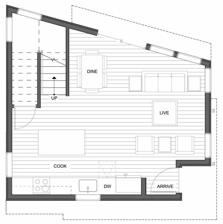
Site/Floor Plans
Select a Unit
1,612 SF Approx.
3 Bed + 2 Bath + Parking Space
1,683 SF Approx.
3 Bed + 2 Bath + Parking Space
1,683 SF Approx.
3 Bed + 2 Bath + Parking Space
1,612 SF Approx.
3 Bed + 2 Bath + Parking Space
Features
EXTERIOR HIGHLIGHTS

Modern architecture
Eco-conscious Woodtone and James Hardie® siding
Ply Gem Pro Series window package
Generously sized roof decks with low-maintenance decking
INTERIOR HIGHLIGHTS

4 Star Built Green
Mini-split heating + cooling
Low VOC paint, formaldehyde-free millwork where possible, energy efficient lighting
Wide plank flooring in the living areas
Solid core interior doors
Centrally located data outlets for better WiFi connectivity
Tankless water heater
KITCHEN

Slab quartz kitchen countertops with single bowl, stainless undermount sink
Stainless steel gourmet appliance suite
Polished chrome faucet and fixtures
Sleek, European-inspired cabinetry with soft-close technology
Under cabinet lighting + under sink cabinet
USB port for connectivity
SPA BATHS

Slab quartz countertops and backsplash with undermount sink in owner's suite bath
Porcelain tile shower surrounds in owner's suite bath with tiled, mud set pan
Porcelain tile flooring
Sleek, European-inspired cabinetry with soft-close technology
Polished chrome faucets and fixtures
High efficiency, low consumption toilets
Disclaimer: Features listed are for general information only. Final specifications, features, floorplans, colors and finishes may vary and/or change at any time without notice. Photos are not representative of actual product.
Neighborhood
Here are the top spots we think you'll love.
Greenwood is a busy, but extremely family-friendly neighborhood! The area around 85th Street and Greenwood Avenue is booming with coffeehouses, antique stores, bars, and eateries, along with a community theater. The community hosts many events that appeal to families and urbanites alike. Things tend to quiet down at night, which makes this the perfect place to live if you like to be on the move during the day and a homebody when the sun goes down.

Geo's Cuban Bar & Grill
Roomy, tropically-themed space specializing in classic Cuban dishes & cocktails.
Las Delicias
Vibrant food truck serving an assortment of tacos, tostados, tortas, and other Mexican dishes.
Sunflower Garden
Cute restaurant serving authentic Chinese dishes made with fresh ingeredients.
Gyro Time
Understated, cozy Mediterranean restaurant offering traditional dishes including gyros, kebabs, falafels, hummus, and more.
Dick's Drive-In
Outpost of a bustling old-school fast-food chain serving burgers, fries, shakes & soft drinks.
Diva Espresso
Bright and airy coffee shop with a menu that includes a variety of espresso drinks as well as beer and wine.
Turtle Coffee
Specialty coffee shop serving delicious coffee-based drinks, other specialty beverages, fresh-baked goods, and breakfast sandwiches.
Gourmet Latte
Drive-thru chain offering espresso, smoothies & other drinks, plus baked goods, bagels & sandwiches.
Preserve and Gather
Contemporary coffee shop featuring java drinks, toast entrees, meat/cheese plates & baked goods.
Monkey Grind Espresso Bar
Espresso drinks, smoothies, pastries & sandwiches served in a cozy, art-filled space with free WiFi.
Tacos & Beer
Baja-Mexican fusion kitchen with excellent food, amazing happy hour, and drinks like jalapeño margarita and micheladas!
Thirsty Fish
Friendly neighborhood pub with a selection of beers on tap as well as an impressive food menu.
Tim's Tavern
Enduring haunt for beer & sandwiches, plus open-mike, trivia & live music nights.
The Cozy Nut Tavern
Serving world beer & quirkily named cocktails alongside interesting bites in a critter-themed space.
Lantern Brewing
Small Seattle brewery that uses local ingredients in its beers and typically has a food truck on site.
QFC
Grocery chain with departments including a deli & a bakery; some have pharmacies, fuel & alcohol.
Lenny's Produce
Inviting neighborhood shop with a wide selection of fruits and vegetables in addition to international products.
Swansons Nursery
5-acre circa-1924 nursery for sustainable gardening, free classes & seminars, a gift store & a cafe.
Snapdoodle Toys & Games
Unique shop selling an array of classic & thought-provoking toys, plus games & musical instruments.
Crown Hill Pet Supply
Pet store offering health-conscious foods for dogs & cats, plus supplements & accessories.
Carkeek Park
220 acres of forests, meadows, wetlands, creeks & beaches, with Puget Sound & mountain views.
AMC Oak Tree 6
Movie theater offering reserved seating as well as AMC signature reclining chairs, a variety of food and drink items, and some RealD 3D movies.
Taproot Theatre
Small performance venue for a nonprofit professional theater group, also hosting acting classes.
Crown Hill Park
Compact, 1.7-acre park that includes play areas, a skate dot, plantings, and picnic table.s
Soundview Playfield
Sizeable neighborhood park with sports fields, a playground, climbing features, walking trails, and a wading pool.
Bus Route 28
Express bus route that travels from Broadview/Carkeek Park to Downtown Seattle.
Bus Route 40
Travels from Northgate Transit Center to Fremont to Downtown Seattle.
Bus Route 5
Travels from Shoreline CC to Greenwood to Downtown Seattle.
RapidRide D Line Bus Route
Travels from Crown Hill to Ballard to Seattle Center West to Downtown Seattle (includes Night Owl.)
RapidRide E Line Bus Route
Travels from Aurora Village to Downtown Seattle (Includes Night Owl).
UPS Access Point
Located at Crown Hill Pet Supply - open Monday to Saturday, 9 a.m. to 7 p.m., Sunday, 10 a.m. to 6 p.m.
The UPS Store
Store offering shipping, packaging, printing & other services, plus office supplies.
FedEx Onsite
Located at Walgreens - Open 7 days a Week, 8 a.m. to 10 p.m.
FedEx Office Print & Ship Center
Store offering shipping services, package hold and drop off, and copy and print services
Amazon Hub Locker
Located at Safeway - open 24 hours a day, 7 days a week.





































